Benvenuto in CaseAffittoeVendita!  Accedi | Registrati

48 m² | 2 locali | € 400

Richiedi informazioni

 
 



(info)
 

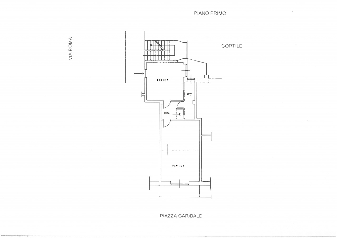
CHIVASSO, Via Roma. A pochi passi dalla stazione e nelle vicinanze dell'ospedale e dell'isola pedonale, proponiamo in affitto appartamento ammobiliato posto al primo piano (con ascensore), composto da ingresso su cucina, disimpegno, ripostiglio, salottino, una camera, bagno e due balconi. Riscaldamento centralizzato con termovalvole per la contabilizzazione del calore. Si prediligono contratti transitori annuali con possibilità di rinnovo. Si richiedono due mensilità di cauzione e clienti con referenze personali e reddituali dimostrabili. Per visualizzare tutte le foto, collegarsi al sito cittacasa, riferimento G784. Agenzia di Chivasso (TO), Piazza Garibaldi 1/b. Classe Energetica: E - IPE: 140.12kWh/mq anno

Tipologia:
Appartamento
Gestione:
Affitto
Superficie:
48 m²
Locali:
2
Camere:
1
Bagni:
1
Condizioni:
Abitabile
Posto Auto:
No
Giardino:
Nessuno
Ascensore:
Piscina:
No
Aria Condizionata:
No
Cucina:
Abitabile
Riscaldamento:
Centralizzato
Classe energetica:
E (140.12 kWh/m² anno)

Richiedi informazioni


 

 


(info)